Аренда мини крана OCALIFT 400
Характеристики
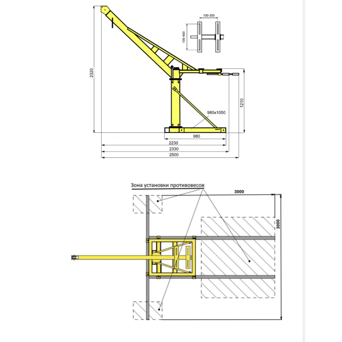
Технические характеристики 
- Вылет крюка,м1,3
 
- Высота подъема, м60
 
- Вес, кг70
 
- Грузоподъемность, кг400
 
- Сеть, В/Гц220
 
Описание
Компания "НоваРент" предлагает в аренду мини краны , кран OCALIFT, стрелового типа. Все краны прошли техническое обслуживание и полностью готовы к работе. Вы можете взять мини кран в аренду на любое удобное для Вас количество дней. Данная модель имеет разборную конструкцию и может быть доставлена и смонтирована с стесненных условиях строительной площадки. Мини краны очень активно используют для поднятия строительных материалов на крышу зданий , для опускания грузов ниже уровня земли в траншею, при работе на мостах  и путепроводах.. Стрела крана OCALIFT  вращается на 360 градусов, что позволяет очень равномерно распределить груз в зоне работы стрелы.
| Технические характеристики | |
| Вылет крюка,м | 1,3 | 
| Высота подъема, м | 60 | 
| Вес, кг | 70 | 
| Грузоподъемность, кг | 400 | 
| Сеть, В/Гц | 220 | 




